Home Show Schedule Contact Us To Exhibit
 
 

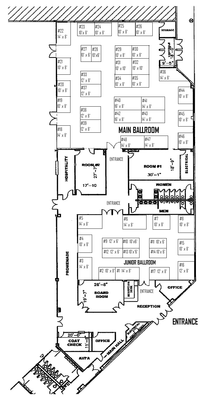
 Show and booth layout at the NJ Convention Center

To Exhibit

 

 To Exhibit